Förutsättningar och Förändringar

FÖRUTSÄTTNINGAR OCH FÖRÄNDRINGAR

Tidigare ställningstaganden

Riksintressen

Området ligger inom MSA1-ytan för Arlanda och Uppsala flygplatser och berör därmed riksintresset för kommunikationer. Med hänsyn till den tillåtna höjden på kommande bebyggelse (under 20 meter) bedöms planförslaget inte påverka riksintresset. Väster om planområdet finns ett vattenskyddsområde samt en kraftledning. Planförslaget bedöms inte påverka dessa.

Utdrag ur framtidsbild för planområdetUtsnitt ur översiktsplanen, framtidsbild för Järfälla, med planområdet markerat i rosa.


Översiktsplan

Översiktsplanen ”Järfälla - nu till 2030” för Järfälla kommun antogs av kommunfullmäktige 2014-06-02 och aktualitetsförklarades 2018-09-17. I översiktsplanen är planområdet utpekat som ett område med varsam utveckling och bibehållen karaktär. Planförslaget bedöms överensstämma väl med gällande översiktsplan.

Markavvattningsföretag

Fastigheten omfattas av markavvattningsföretaget Järfälla småbruk tf, som är registrerat som aktiv. Företaget omfattar större delen av villaområdet Grönvreten med ett stort antal fastigheter.

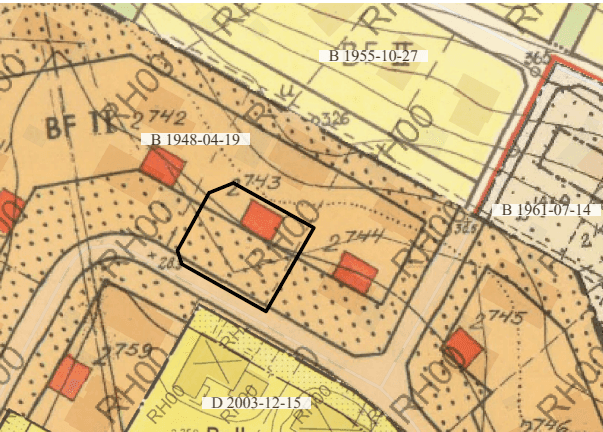
Gällande detaljplanerKarta över de detaljplaner som påverkar planområdet, planområdet markerat med svart.

Gällande detaljplaner, områdesbestämmelser

Planen omfattar delar av områden med gällande planer enligt tabellen nedan:

Nr
Namn

B 1948-04-19

Detaljplan för Jakobsberg södra delen 1948-04-19

Planområdet omfattas av detaljplanen Jakobsberg södra delen, upprättad 1948. Detaljplanen omfattade vid tiden en mycket stor del av västra Jakobsberg. Genom åren har nya detaljplaner upprättats för olika delområden och enstaka fastigheter.

Ursprungligen möjliggjordes en minsta tomtstorlek om 1000 m² som ändrades år 1955 till 750 m². En avstyckning av ursprungsfastigheten genomfördes under 1970-talet, vilket har medfört att även byggrätten krympt enligt gällande detaljplan. Att uppföra ny bebyggelse inom aktuell fastighet är inte möjligt enligt gällande plan från 1948 då delar av fastigheten begränsas av prickmark (område där byggnad inte får uppföras) eller är för nära tomtgräns.

Planen tangerar även delar av områden med gällande planer enligt tabellen nedan:

Nr
Namn

B 1955-10-27

Detaljplan för Jakobsberg 2:10, 2:124 1955-10-27

B 1961-07-14

Jakobsberg 2:10 och 2:124 m m 1961-07-14

D 2003-12-15

Detaljplan för Kärrvägen/ Terrängvägen 2004-01-08

Bild från planområdetBebyggelse utmed Terrängvägen. Aktuell tomt syns till vänster.

Bebyggelse och landskapsbild

Grönvreten är ett villaområde beläget i nordvästra Jakobsberg. Bebyggelsen i området är tidstypisk från 1960-och 70-talet bestående av 1,5-2 plans enfamiljsvillor, ofta med möjlighet till inredd vind. Vanliga fasadmaterial är tegel och träpanel av locklisttyp. Den vanligaste taktypen är sadeltak. Bebyggelsen är indragen från gata vilket gör att gräsbeklädda förgårdar skapas. Gällande detaljplan möjliggör en maximal byggnadsyta om 110 m2. Komplementbyggnad i form av garage och förråd möjliggörs utöver detta till en sammanlagd yta om 150 m2.

Kulturhistoriskt värdefull miljö

Fornlämningar och byggnadsminnen

Inom planområdet finns inga kända fornlämningar. Ett område med kulturhistoriskt värdefull bebyggelse, bestående av kedjehus, finns utpekat längre österut men berör inte planområdet. Planen har således ingen påverkan på kulturmiljön eller fornlämningar. Om man vid grävning eller annat arbete påträffar fornlämning föreligger anmälningsplikt enligt kulturmiljölagen.

Parker, torg och mötesplatser

Park

Närmaste park är Grönvretenparken cirka 300 meter från planområdet.

Vattenområden

Närmaste vattenområde utgörs av Mälaren cirka 1,7 kilometer från planområdet.

Lek, rekreation och mötesplatser

Planområdet saknar rekreationsvärden. Naturlek finns cirka 50 meter väster om planområdet i Görvälns naturreservat. Lekplats finns i Grönvretenparken 300 meter från planområdet.

Karta över gatunätKartan över gatunätet i närområdet. Planområdet angränsar till Terrängvägen.

Gator och trafik

Planområdet angränsar till Terrängvägen, en villagata med en bredd på 4,5 meter. Gatunätet är finmaskigt och gatorna saknar oftast trottoar. På ena sidan finns ett dike som tar hand om dagvattnet. Terrängvägen löper inom en större del av området och ansluter till Kärrvägen söder respektive Blockvägen öster om planområdet. Kärrvägen ansluter i sin tur till Viksjöleden längre österut, varifrån man kan nå Jakobsbergs centrum. Parkering i området sker på den egna tomten.

Kollektivtrafiken i området utgörs av busstrafik till och från Jakobsberg centrum. Närmaste busstation är Sätervägen, som ligger cirka 500 meter från planområdet.

Natur

Mark och vegetation

Planområdet består idag av en trädgård med gräsmatta, fruktträd samt buskage. Väster om planområdet finns ett större sammanhängande barr-och blandskogsområde som utgörs av Görvälns naturreservat.

Naturvärden

Det finns inga dokumenterade naturvärden inom planområdet. Ett område med påtagligt naturvärde finns väster om planområdet inom Görvälns naturreservat.

Rekreation och friluftsliv

Promenad- och motionsslingor nås inom nära avstånd i Görvälns naturreservat.

Geoteknisk karta med förutsättningar för översvämning respektive ras och skred inom planområdet med omnejd.Övergripande redovisning av jordarter enligt SGU:s jordartskarta.

Markförhållanden

Geoteknik

Marken inom fastigheten består i sin helhet av glacial lera med låg genomsläpplighet. Norr om fastighetsgränsen börjar ett stort sammanhängande område bestående av sandig morän.

Förutsättningar för ras och skred

Utifrån en övergripande utredning av ras och skred som genomfördes 2022, finns en begränsad risk för sättning och erosion. I utredningen ingår planområdet i riskklasserna 1 och 2 vilket medför en liten respektive medelhög risknivå. Risken tycks vara störst i planområdets norra del, ungefär till mitten av området. Riskklass 2 tilldelas områden som består av exempelvis lera. Analys av ett klimatanpassat 100-års regn, har visat på att områden med riskklass 2 i vissa fall kan uppträda som riskklass 3, vilket medför högre risk för sättningar. Geotekniska åtgärder rekommenderas därmed inom planområdet. Exempelvis kan dränering och förbelastning av mark, för att ta ut sättningar, eller pålgrundläggning vara aktuellt vid uppförande av ny bebyggelse (Sweco, 2022). Geotekniska lösningar kommer att granskas i samband med bygglov.

Förorenad mark och sediment

Inga kända föroreningar finns registrerade sedan tidigare. Planförslaget bedöms inte ge upphov till några föroreningar.

Radon

En översiktlig undersökning av radonriskbedömning gjordes för hela kommunen 1998.Området bedöms ha måttlig risk för radon. Radonsäkert utförande rekommenderas inom planområdet.

Översvämningssituation i närområdet.Kartan visar förutsättningarna för översvämning respektive ras och skred inom planområdet med omnejd. Blå färg markerar översvämningsdjup. Ljusgrön färg motsvarar riskklass 1 (liten) för ras och skred. Gul färg motsvarar riskklass 2 (medelhög risk).

Hydrologiska förhållanden

Vattenkvalitet och miljökvalitetsnormer

Planområdet ligger inom Bällstaåns avrinningsområde, vilket innebär att dagvattnet från området idag leds till Bällstaån via Veddestabäcken som delvis är kulverterad. Bällstaån startar i Jakobsberg i Järfälla kommun och rinner sedan genom Stockholms och Sundbybergs kommuner vidare till Bällstaviken i Solna, där ån mynnar i Mälaren. Ån rinner till största delen genom tätbebyggda områden och är därför kraftigt påverkad av mänsklig aktivitet.

Bällstaån är av vattenmyndigheten klassad som en ytvattenförekomst, med fastställda Miljökvalitetsnormer. Åns ekologiska status är idag dålig, bland annat på grund av höga halter näringsämnen och att ån utsatts för stora morfologiska förändringar. På grund av att de åtgärder som krävs för att uppnå en Måttlig ekologisk status är tids-och resurskrävande har en tidsfrist givits till 2027.

Bällstaåns kemiska status bedöms som Uppnår ej god. Förutom de överallt överskridande ämnena kvicksilver och polybromerade difenyletrar (PBDE) så överskrids även halterna för benso(b)flouranten och benso(g,h,i)perylen samt gränsvärdet för perfluoroktansulfon (PFOS). Tidsfrist gäller till år 2027 för att uppnå en God kemisk status, undantaget de överallt överskridande ämnena. Planförslaget möjliggör ny bebyggelse som upptar cirka en femtedel av tomtens storlek. Det innebär att det finns goda förutsättningar för lokal infiltration och rening av dagvatten och därmed inte påverka möjligheten att uppnå miljökvalitetsnormerna för Bällstaån.

Dagvatten

Fastigheten består idag helt av gräsytor som tar upp dagvatten. För att inte öka avrinningen från fastigheten genom planförslaget föreslås åtgärder som fördröjer och renar dagvattnet, detta beskrivs under rubriken Dagvattenhantering i avsnittet Teknisk försörjning. En dagvattenutredning har också tagits fram inom ramen för planarbetet.

Översvämning och skyfall

Planområdet är idag inte drabbat av översvämningar. Fastigheten ligger högre i förhållande till gatan, och i samma nivå eller något lägre än intilliggande fastigheter. Enligt Järfälla kommuns översiktliga översvämningskartering finns det risk för mindre vattenansamling i gatunivå i samband med ett större skyfall, så som vid ett klimatanpassat hundraårsregn. Planförslaget antas inte bidra till en ökad risk för översvämning i samband med att ny mark tas i anspråk. Vid 100-årsregn blir marken mättad och har därmed en begränsad infiltrationskapacitet vilket innebär att en liten skillnad i hårdgörningsgrad inte har någon större betydelse. Planläggningen innebär heller inte att skyfallsvatten flyttas till någon annan plats. Situationen med avseende på skyfall blir likadan efter exploatering som den är innan. Planområdet är även mycket litet i förhållande till avrinningsområdet. Eftersom planerade dagvattenåtgärder syftar till att göra marken mer genomsläpplig så kommer markens genomsläpplighet inom planområdet snarare att öka i och med planens genomförande. Det befintliga dagvattendiket i anslutning till planområdets södra gräns medför att skyfallsvattnet kan ledas bort från planområdet utan risk för kringliggande fastigheter.

Teknisk försörjning

Vatten och avlopp

Området är anslutet till kommunens vatten- och avloppsnät.

Avfallshantering

Avfall hanteras med avfallskärl som placeras vid gränsen mot Terrängvägen.

Avfallshanteringen ska ske i enlighet med kommunens renhållningsordning. Närmaste återvinningsstation är Görvälns återvinningscentral cirka 2,5 km från planområdet.

Fjärrvärme

Fjärrvärmeledningar finns i närområdet.

El

Allmänna elledningar är utbyggda i området.

Bredband

Befintligt fibernät för bredband och telekommunikation finns i närområdet.

Genomsläpplig markbeläggningExempel på genomsläpplig markbeläggning i Järfälla kommun så som gräsarmering eller packat grus.

Dagvattenhantering

Dagvattenhanteringen ska följa kommunens riktlinjer. Dagvattnet bedöms kunna omhändertas lokalt inom planområdet. Marken inom planområdet består i sin helhet av postglacial lera, vilket medför en låg genomsläpplighet. Fastigheten sluttar åt sydväst vilket medför risk för mindre vattenansamling i gatunivå. Jorddjupet kan enligt SGU:s jorddjupsmodell uppskattas mellan 5 till 10 meter. Beräkningar har gjorts för att ta reda på hur mycket dagvatten som behöver omhändertas för att uppfylla krav på rening och fördröjning. Beräkningen visar att minst 2 m3 behöver omhändertas (Järfälla kommun, 2023).

Dagvattnet från takytorna inom planområdet anses vara relativt rent jämfört med asfalt- och parkeringsytor och hanteras därför separat från övriga ytor. Eftersom vattnet kan ha svårt att infiltrera i marken på grund av lutning eller markens egenskaper behövs fördröjningsmagasin med en volym på 2 m3. Exempel på fördröjningslösning är stenkista, krossdike eller makadammagasin. Fördröjningsmagasinen bör placeras där vattnet kan infiltrera i marken samt så att vattnet från fördröjningsmagasinen inte rinner mot gata och övrig bebyggelse. De hårdgjorda ytorna uppskattas i första hand bestå av takytor för huvudbyggnad och komplementbyggnad med en maximal areal om sammanlagt 170 m2 samt uppfart och eventuell markyta för uppställning av fordon på den egna fastigheten, motsvarande cirka 100 m2. Uppskattningsvis kommer cirka 270 m2 yta hårdgöras av tomtens yta om 750 m2.

För att hantera dagvatten från de hårdgjorda markytorna föreslås infiltration i grönytor eller växtbäddar. En infiltrerbar grönyta om 25 m2 bedöms vara tillräcklig för att fördröja och rena dagvatten från hårdgjorda markytor. Grönytorna bör utformas som vanliga gräsytor med en väl dränerad överyta som ger en hög infiltrationsförmåga. Sand eller grövre material kan användas som huvudkomponenter i jordlagret närmast ytan. Dagvattnet behöver avledas på bred front till grönytan, som ska vara placerad längs med de hårdgjorda ytorna. Kantsten mellan hårdgjorda ytor och grönytor bör därför undvikas. Grönytan bör anläggs åtminstone med en 0,2 m mäktighet och ha en porositet på 30 %.

För att se till att en stor del av marken inom planområdet inte hårdgörs regleras andelen mark som ska vara genomsläpplig till 50 % i plankartan. Utöver det regleras byggrätterna för att begränsa den hårdgjorda ytan. I detaljplanen regleras även att koppar, zink eller bly inte får finnas obundet eller oskyddat utomhus. Med rekommenderad dagvattenhantering uppfyller planförslaget därmed kravet på att inte försämra möjligheten att uppfylla miljökvalitetsnormerna för vatten, och uppfyller Järfälla kommuns riktlinjer för dagvattenhantering med bland annat krav på rening, riktvärden och flödesbegränsning.

BullerkartaEkvivalenta respektive maximala bullernivåer i närområdet. Planområdet markeras med svart.

Störningar och risker

Buller, vibrationer

Bullerkällan utgörs av en mycket begränsad mängd trafik i området. Enligt Järfälla kommuns översiktliga bullerkartläggning ligger den ekvivalenta bullernivån inom planområdet mellan 45-50 dBA. Den maximala ljudnivån varierar mellan 60-80 dBA. Ljudnivån avtar längre in från Terrängvägen.

För att säkerställa att ljudnivån vid bostadens uteplats inte riskerar att överskrida riktvärdena som anges i förordning 2015:216 kan uteplatsen placeras längre in på tomten, där den maximala bullernivån är som högst 70 dBA. Föreslagen utformning möjliggör detta. Inga övriga åtgärder bedöms behövas.

Farligt gods och riskfyllda verksamheter

Planområdet är inte i närheten av primära eller sekundära transportleder för farligt gods.

Räddningstjänstens framkomlighet

Planområdet ligger i ett befintlig villaområde vilket innebär att räddningstjänstens framkomlighet är redan säkerställd och påverkans inte av planförslaget.

Luftkvalitet

Planområdet är exponerat för låga luftföroreningshalter eftersom biltrafiken lokalt är mycket begränsad. Inga åtgärder bedöms behövas.

Lokalklimat

Ljus

Bebyggelsen placeras i en sydvästvänd sluttning. Ingen närbelägen skuggkälla finns vilket leder till att planområdet överlag kommer vara soligt. Växtlighet kan komma att utgöras av lägre träd samt buskage mot grannfastigheterna.

Värme

Det råder ett gott värmeklimat i och med närheten till naturreservatet inom influensområdet. Den urbana värmeeffekten kommer inte att påverkas av att en del av planområdet hårdgörs.